Монтаж канализационных труб
 

  Главная:
характеристики кирпича.


  Кирпич керамический.
  Кирпич силикатный.
  Кирпич строительный.
  Кирпич облицовочный.
  Кирпич клинкерный.
  Кирпич огнеупорный.
  Кирпич магнезитовый.
  Кирпич-сырец.
  Кирпичная кладка.
  Кладка дымоходов.
  Раствор для кладки.
  Дефекты кладки.
  Сырье для кирпича.
  Количество кирпича.

Кирпичные заводы России
Заводы ЖБИ в России
Строительные компании
Бетонные блоки

Строительство частного дома.
 Отопление
 Водопровод
 Вентиляция
• Канализация
 Газификация
 Звукоизоляция
 Электрокоммуникации
 Изыскательские работы
 Советы по строительству


Архитектурные термины.
Архитектурные стили.
Полезные статьи.
Строительные ГОСТы.


Лента новостей сайта

поделиться в соц. сетях:
 

Монтаж канализационных труб.


   Канализационная система выполняет очень важные функции по очищению дома от продуктов жизнедеятельности. Некачественно произведённый монтаж канализационных труб может причиной засоров и очагом распространения неприятных запахов.

Монтаж канализации доверяют, как правило, профессионалам, но при условии соблюдения технологических процессов обустроить канализационную системы можно и самостоятельно. Особенности монтажных работ связаны со специфичностью норм и правил, правильном подборе материалов, оборудования и комплектующих.

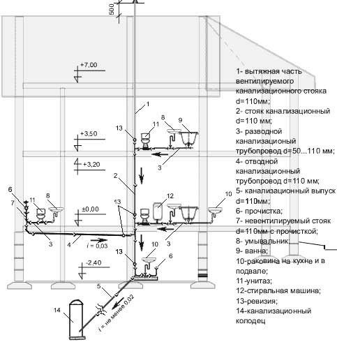
Основной принцип канализации - безнапорный, т. е. естественный сток отходов по системе. Грамотный монтаж производится с уклоном 2-15% к внутреннему трубопроводу, к наружной канализации и к септику. Уклон труб фиксируется крепящимися к стенам скобами. Определение угла наклона делается индивидуально - для этого существуют специальные таблицы со средними значениями для труб различной длины и диаметра, а также для сантехнических приборов. Когда нет возможности создать необходимый уклон труб в подвале или в цокольном этаже, монтируется перекачивающее оборудование.

• Существует определённая норма соотношения диаметра труб - в месте подключения сантехники к канализации разница между Ø трубы и между Ø трубы, входящей в септик, должна быть от 2 до 15 см.

Универсальный диаметр труб для разных участков канализации:

- для умывальника и биде - 32-40 мм;
- для ванной и раковины - 50 мм;
- для стояка и мест подключения нескольких сантехнических приборов - 70-85 мм
- для унитаза - 100 мм;
- для сливной трубы для отвода - 100 мм;



• Согласно правилам монтажа укрытие труб канализации производится полиэтиленом, а утепление - с использованием стекловаты или стекловолокна.

Регулировать протекание стоков и испарение газов призвана вентиляционная система - колодцы, вентиляционные люки, клапаны во внутренней и внешней системе. При наличии нескольких коллекторов вентиляция должна быть обустроена в каждом из них. Вывод вентиляции делается наружу через стены и крышу. При условии длины соединения трубопровода с унитазом более одного метра и остальных сантехнических приборов более трёх метров они в обязательном порядке оснащаются осуществляющей наружный вывод газов дополнительной трубой вентиляции.
Монтаж канализации с вентиляцией через крышу.

Элементы и методы соединения труб канализации

К частям внутренней канализационной системы относятся:

- раструбные соединительные элементы;
- специальная канализационная;
- обыкновенный канализационный стояк;
- отводящие трубы;
- дефлектор;
- трап, вмонтированный в пол.

На долговечность канализационной системы напрямую влияют соединения её труб - муфты, разные тройники, крестовины, переходники, фитинги и соединяющие трубы детали поворотов. Монтаж системы можно производить с использованием труб из разных материалов. Необходимо владеть методами стыковки трубы из различных материалов - соединения в раструб и резьбовые, фланцевые и электромуфтовые соединения, сварка, К наиболее востребованным относятся чугунные и пластиковые, однако чугунные отличаются значительной массой и трудоёмкостью монтажных работ.
Монтаж канализации в частном доме.

• Современные пластиковые трубы лёгкие, обладают достаточной прочностью, не поддаются коррозии и просты в использовании. Виды пластиковых труб:

металлопластиковые;
ПЭ - полиэтиленовые;
ПВХ - поливинилхлоридные;
ПП - армированные и неармированные;
ПНД - полиэтиленовые низкого давления.

Подготовка к монтажу канализационной системы

• Для начала необходимо определиться, какие приборы и где будут установлены.
• Составить план работ.
• Подобрать необходимые комплектующие для работы приборов.
• Рассчитать все размеры.
Необходимые инструменты:
- разводной ключ;
- ножовка по металлу или болгарка;
- монтажный пистолет;
- перфоратор или дрель;
- молоток;
- отвёртки;
- зубило.

Для нарезки труб из пластика потребуются специальные инструменты и приспособления. Если торцы будут недостаточно аккуратно срезаны и не зачищены, то через получившиеся в этом случае зазоры в соединениях будут просачиваться сточные бытовые отходы. Для нарезки труб из пластика применяется труборез - роликовый труборез подойдёт для разрезания труб до Ø 38 мм. Ролик будет регулировать плотность соединения его режущих участков к трубам и срезы получаются без зазубрин, не сгибая трубу. К недостаткам трубореза можно отнести то, что для работы с ним потребуется значительное пространство, поэтому для разрезания трубы около стены использовать труборез не получится. Для подобных участков используются специальные ножницы, гильотины или однопроходные труборезы. С помощью ножниц и при наличии достаточной физической силы можно резать трубы до Ø 42 мм.

• Для улучшения сцепления во время сварки труб их торцы обрабатываются фаскоснимателем. Ручные могут работать с трубами Ø 40-300 мм. Калибратор хорошо ровняет форму среза труб, зачищает алюминиевый слой торцов трубы перед спайкой, удаляет заусенцы, снимает фаску и убирает другие неровности. С каждым диаметром трубы работает определённый калибратор.

Септики - очистительные системы
Выгребная яма из ж/б колец
Трубы для водопровода, канализации и отопления
Дренажная система на приусадебном участке

Монтаж канализационных труб из пластика

Особенности укладки и соединения пластиковых труб включает в себя:

• Резьбовое соединение пластиковых труб необходимо уплотнять резиновыми прокладками или ФУМ-лентой.

• Во время присоединения сантехники к канализации необходимо использовать гофры, мягкие трубы, шланги.

• При соединении пластиковой трубы с металлической используются уплотнители.

• При соединении в раструб можно применять только резиновые прокладки.

• При резьбовом соединении пластиковых труб с использованием муфт необходимо вставить трубу с фаской в муфту до конца, после чего отодвинуть назад. Данная манипуляция призвана предохранить трубу от деформации во время расширения при стоке горячей воды. Подвижное соединение участков для стока горячей воды Канализационные трубы, по которым будет производиться сток горячей воды, лучше монтировать подвижным резьбовым соединением.

Порядок монтажных работ пластиковой канализационной системы:

• Производится разметка на полу, на стенах, в местах соединений труб и выводящих стоки труб, в местах присоединения к сантехнике.

• Укладка и соединение труб при помощи сварки и специальными соединительными элементами и крепежами.

• При помощи переходников присоединение к трубам или сантехническим приборам имеющие наклоны колена или отводы.

• При необходимости сделать ответвление от одного трубопровода к другому используются фитинги.

Монтаж чугунных канализационных труб
• Хвостовая часть трубы без раструба вставляется в раструб другой монтируемой трубы.

• Между краями заделываются все зазоры Уплотнителем заделываются все зазоры между краями. В качестве уплотнителя можно использовать вымоченную в солидоле или машинном масле льняную паклю. С помощью деревянной лопатки вымоченная пакля забивается в щели на 2/3. Остальная треть забивается непропитанным уплотнителем.

• Раструб необходимо заполнить цементом с последующим утрамбовыванием. Во избежание появления трещин сверху цемента надо уложить влажную ткань, битумную мастику, асбестоцементную смесь, специальный сантехнический герметик. В местах соединения чугунной и пластиковой труб применяются специальные переходники и муфты.

Монтаж канализационных труб.

Установка унитаза относится к довольно ответственным частям монтажа канализационной системы. Унитаз соединяется с канализацией при помощи пластиковой трубы Ø 110 мм. После чего, используя короткий мост на 100 мм, делается плавный переход к трубе Ø 50 мм. Использовать переходники с прямым углом не рекомендуется - лучше применять два переходника с углами по 45º. Стыковка труб производится через прокладки с использованием силиконового герметика.



 

Для связи: uvo70@yandex.ru

Использование материалов сайта
при условии обязательной гиперссылки на данный ресурс.